6029 MAIDENSTONE WAYPALMETTO, FL 34221




Mortgage Calculator
Monthly Payment (Est.)
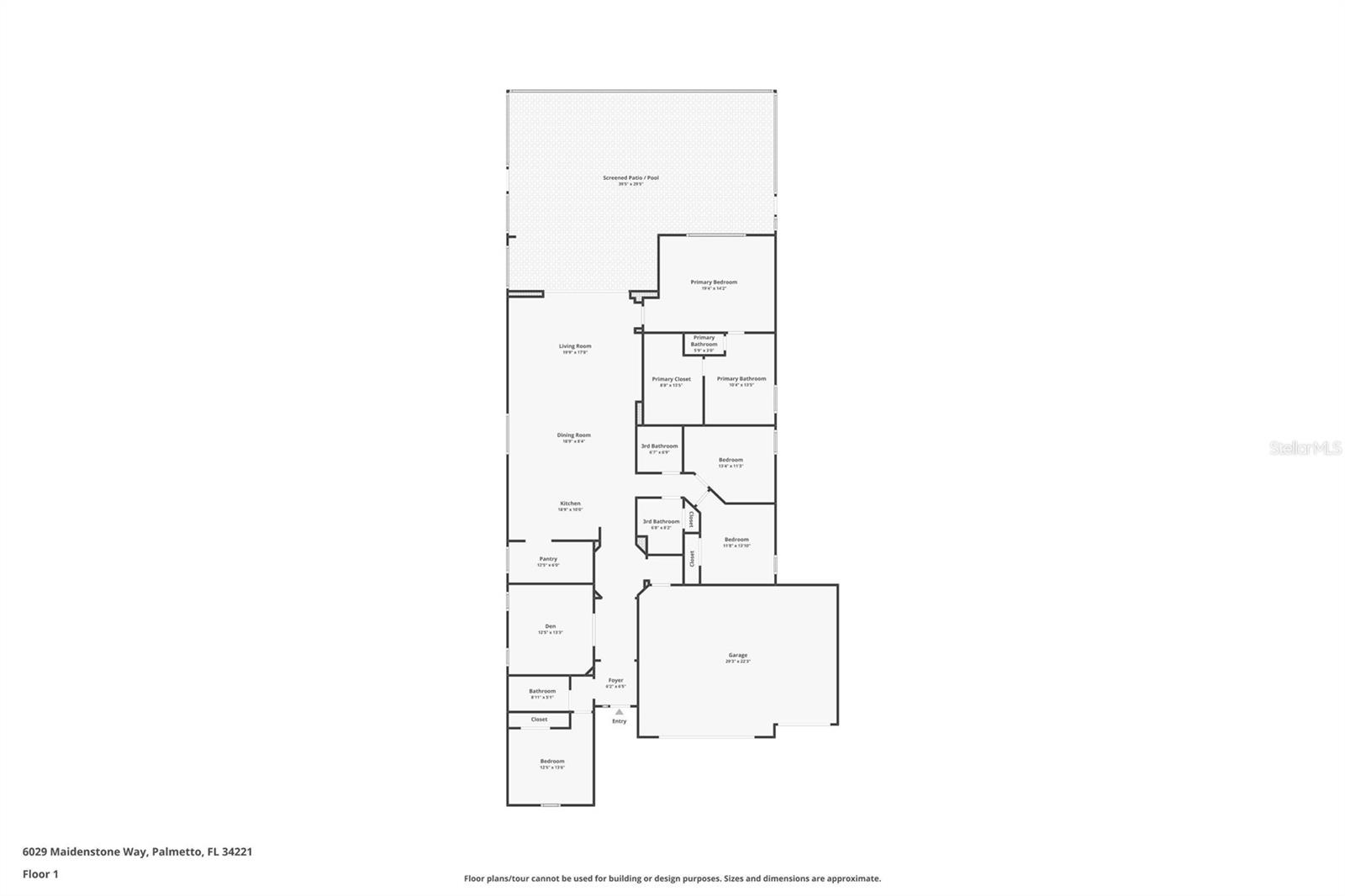
$3,007Welcome home to this exceptional Taylor Morrison Antigua model, offering 4 bedrooms, WITH DEN, 3 baths, and a 3-car garage with over 2,400 sq ft of thoughtfully designed living space, perfectly positioned on a premium conservation lot in the highly sought-after Eaves Bend at Artisan Lakes. Designed as a true forever home, this residence features over $185,000 in high-end upgrades, delivering comfort, quality, and lasting value. The open-concept floor plan is ideal for both everyday living and entertaining, anchored by a GE Cafe gourmet kitchen with gas cooking, quartz countertops, GE Monogram beverage center, tray ceilings, epoxy garage, and upscale finishes throughout. Step outside to your private resort-style backyard, complete with an expanded heated saltwater pool and spa, screened enclosure with no-see-um mesh, travertine paver patio, and a fully equipped outdoor gas summer kitchen with quartz countertops, perfect for year-round enjoyment. Additional highlights include aluminum rod fencing, garage attic stairs with insulation, whole-house water softener system, low HOA, and no flood zone designation. Conveniently located near I-75, with easy access to Sarasota, Lakewood Ranch, Tampa, St. Petersburg, and Bradenton, as well as nearby shopping, dining, schools, and everyday conveniences. Artisan Lakes Elementary School to open this fall, 2026 – 2027 school year! Residents of Artisan Lakes enjoy resort-style amenities including a clubhouse, fitness center, community pool, walking trails, dog park, and tot lot. Beautifully maintained, move-in ready, and rich in upgrades, this home offers exceptional value in a prime location, opportunities like this are rare. Schedule your private showing today!!
| 3 hours ago | Listing updated with changes from the MLS® | |
| 5 hours ago | Listing first seen on site |
Listing information is provided by Participants of the Stellar MLS. IDX information is provided exclusively for personal, non-commercial use, and may not be used for any purpose other than to identify prospective properties consumers may be interested in purchasing. Information is deemed reliable but not guaranteed. Properties displayed may be listed or sold by various participants in the MLS Copyright 2026, Stellar MLS.
Last checked: 2026-01-22 06:09 PM EST
Did you know? You can invite friends and family to your search. They can join your search, rate and discuss listings with you.