22 OAKLAND HILLS COURTROTONDA WEST, FL 33947




Mortgage Calculator
Monthly Payment (Est.)
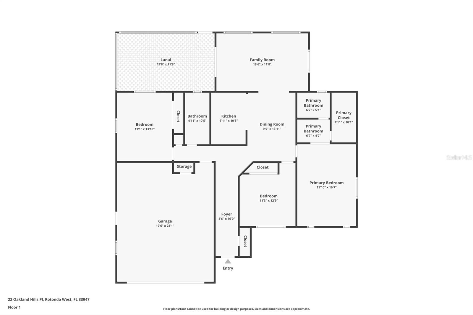
$1,072Enjoy peaceful mornings and beautiful fairway views in this well-maintained Florida home overlooking the Oakland Hills Golf Course, perfectly positioned along the 1st hole. This prime golf course home offers wide green views and a calm setting you will love coming home to every day. The chain-link fenced backyard provides both privacy and function, complete with two man gates and oversized access. It’s perfect for pets, outdoor projects, or extra storage needs. There is plenty of room to create the outdoor space you’ve always wanted while enjoying open golf course views right behind you. Inside, you’ll find new laminate flooring throughout the entire home, giving every room a fresh and modern look. The interior walls have been recently retextured and freshly painted, creating a clean and bright feel from the moment you walk in. Most rooms feature updated light fixtures and ceiling fans, adding style and comfort throughout the home. The primary bedroom stands out with a gorgeous barn door that opens to a thoughtfully designed split bathroom layout. The vanity and sink area offer great function and charm. Both bathrooms have been upgraded with new toilets and shower heads, adding value and peace of mind. The kitchen and bathroom remodels are ready for your inspiration, giving you the chance to design spaces that match your personal taste and style. A home warranty for the new buyer is included, offering extra confidence. There is also a comfortable enclosed area that is perfect for laundry, hobbies, or additional workspace. Major improvements bring lasting value to this Florida golf course property. The roof was replaced in 2022, overhead plumbing was re-piped in 2022, and the lanai was partially rescreened in 2022. Hurricane shutters and a hurricane impact front door installed in 2025 add strong storm protection. Located just 20 minutes from Boca Grande, with easy access to shopping, dining, and Englewood Beach, this move-in ready home combines golf course views, functional outdoor space, and key system upgrades in one great location. Don’t miss this opportunity to relax, entertain, and enjoy the view — this is Florida living done right. Call today to schedule a showing of this great home – it's ready and waiting for you!
| 6 hours ago | Listing updated with changes from the MLS® | |
| 7 hours ago | Listing first seen on site |
Listing information is provided by Participants of the Stellar MLS. IDX information is provided exclusively for personal, non-commercial use, and may not be used for any purpose other than to identify prospective properties consumers may be interested in purchasing. Information is deemed reliable but not guaranteed. Properties displayed may be listed or sold by various participants in the MLS Copyright 2026, Stellar MLS.
Last checked: 2026-02-25 08:24 PM EST
Did you know? You can invite friends and family to your search. They can join your search, rate and discuss listings with you.