202 BEDFORD STREET 49SUN CITY CENTER, FL 33573




Mortgage Calculator
Monthly Payment (Est.)
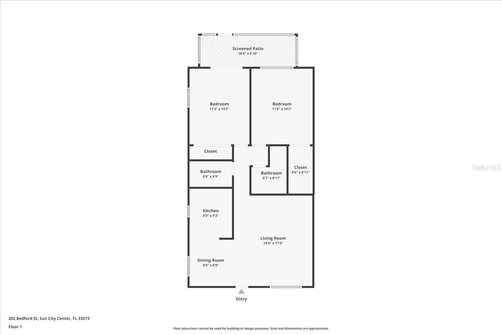
$502One or more photo(s) has been virtually staged. Embrace the sun-kissed retirement you’ve worked so hard for in the premier 55+ active adult destination of Sun City Center, Florida. This This 2-bedroom, 2-bathroom condo is the perfect canvas for your personal touch, offering a clean and bright living space with a practical layout that truly maximizes the Florida sunshine. You will immediately appreciate the easy-to-maintain flooring, featuring a mix of tile and vinyl with absolutely no carpet throughout the home—ideal for keeping things cool and simple. The dining room boasts plenty of natural light with space to gather for a family meal! The spacious living area flows beautifully and is filled with an abundance of natural light, creating an airy atmosphere that feels open and welcoming. Step through to your private, screened-in porch to enjoy the gentle afternoon breeze in total comfort. And don’t forget to utilize your dedicated covered carport space to keep your vehicle protected from the elements. This community haven offers an incredible lifestyle where your daily worries melt away, especially since this community includes essential cable, high-speed internet, and convenient community transportation right in your monthly fees. Imagine starting your mornings with a peaceful stroll along the beautiful bike and walking paths or catching up with neighbors at one of the two vibrant community pools. Whether you're looking to stay active on the tennis and pickleball courts or enjoy a friendly afternoon of shuffleboard, this community is designed to keep you moving and engaged. Life here is made even easier by the unique golf cart-friendly culture, allowing you to zip over to the on-site restaurant for a delicious meal or visit one of the active clubhouses without ever needing to start your car. With world-class medical facilities, shopping, and dining all accessible by your preferred electric ride, you’ll quickly see why so many choose this safe and welcoming neighborhood for their best years. Beyond the gates, you are perfectly situated in the heart of the Tampa Bay-Sarasota corridor, putting you just minutes from professional sports, high-end entertainment, and the breathtaking white sand beaches of the Gulf Coast. Experience the perfect blend of small-town charm and resort-style luxury in a place that truly celebrates your freedom and vitality.
| an hour ago | Listing updated with changes from the MLS® | |
| 13 hours ago | Listing first seen on site |
Listing information is provided by Participants of the Stellar MLS. IDX information is provided exclusively for personal, non-commercial use, and may not be used for any purpose other than to identify prospective properties consumers may be interested in purchasing. Information is deemed reliable but not guaranteed. Properties displayed may be listed or sold by various participants in the MLS Copyright 2026, Stellar MLS.
Last checked: 2026-01-14 02:09 AM EST
Did you know? You can invite friends and family to your search. They can join your search, rate and discuss listings with you.