2505 ELKCAM BOULEVARDPORT CHARLOTTE, FL 33952




Mortgage Calculator
Monthly Payment (Est.)
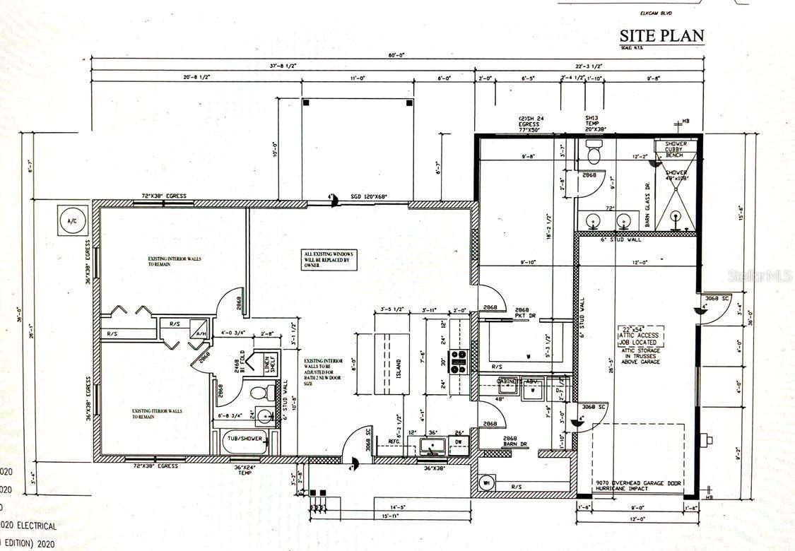
$273Investment Opportunity – Home Under Renovation. Conveniently located near US-41, this property offers easy access to shopping, dining, and major routes. Perfect for investors or buyers looking to create a custom Florida home. Price: $95,000 Bedrooms: 3 | Bathrooms: 2 Living Area: 1,824 SQFT This home is currently under renovation, with demolition and cleanup already completed. Architectural plans are finalized, and several key preparatory works have been done, including the removal of damaged sections and installation of a new fence. Renovation Highlights: Demolition and cleanup completed Damaged sections removed and hauled away New fencing installed around the property Plumbing channels prepared for new installations Ceiling panels dismantled and old insulation removed Estimated Renovation Costs: Turnkey completion—including new kitchen cabinets, appliances, bathrooms, and a fully finished interior—has been estimated by multiple contractors at $90,000 to $145,000. Additional Features: Flexible owner financing options may be considered. This property is a blank canvas, offering strong investment potential or the opportunity to create a dream home tailored to your needs.
| 2 hours ago | Listing updated with changes from the MLS® | |
| 6 hours ago | Listing first seen on site |
Listing information is provided by Participants of the Stellar MLS. IDX information is provided exclusively for personal, non-commercial use, and may not be used for any purpose other than to identify prospective properties consumers may be interested in purchasing. Information is deemed reliable but not guaranteed. Properties displayed may be listed or sold by various participants in the MLS Copyright 2026, Stellar MLS.
Last checked: 2026-02-06 09:00 PM EST
Did you know? You can invite friends and family to your search. They can join your search, rate and discuss listings with you.